Das Wohnhaus wird massiv errichtet und verfügt über einen eigenen Garten von rund 133m² in einer ruhigen, sonnigen Sackgasse.
Das Erdgeschoß besteht aus Vorraum, Abstellraum, Speis, WC ein offenes Wohn.- Esszimmer und angrenzender Sonnenterrasse von ca. 25m²
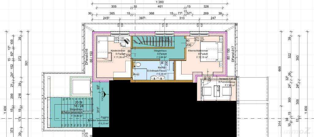
Die Wohnung hat im Obergeschoß 2 Schlafzimmer und Bad mit WC und ein kleiner Balkon beim Elternschlafzimmer.
Das Kellerabteil hat die Größe von 7,65m²
Ebenfalls im Preis enthalten sind 1 Überdachter Parkplatz und ein freier Autoabstellplatz.
Ein Liftschacht wird vorbereitet.
| Standort: | 8044 Weinitzen |
| Lärm: | geringe Lärmbelastung |
| Verkehr: | Öffentliche Verkehrsmittel: 2-3min Min. zu Fuß |
| Kurzinfo: | Graz Mariatrost ist in einigen Minuten erreichbar jedoch in traumhafter Ruhelage. |
| Provision: | 3,6 inkl. 20% MwSt. vom Gesamtkaufpreis |
| Baujahr: | 2026 |
| Garten: | 133 m2 |
| Keller: | 8 m2 |
| Wohnfläche: | 98 m2 |
| Balkon/Terrasse: | 33 m2 |
| Zimmer: | 3 |
| Badezimmer: | 1 |
| Separates WC: | 1 |
| Stellplätze: | 2 |
| Küche: | offen |
| Badezimmer: | Dusche |
