Zum Verkauf steht eine generalsanierte 2 Zimmerwohnung im obersten Liftstock.
Die Wohnung mit Baujahr 1972 wurde 2020 generalsaniert und offen gestaltet.
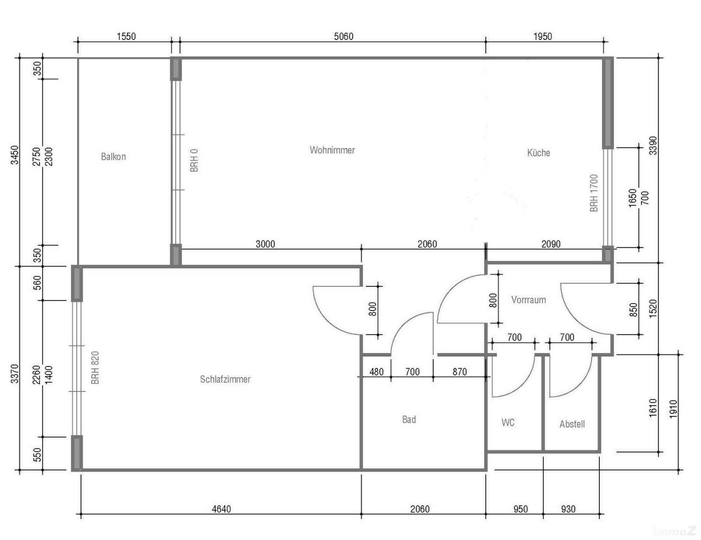
Vom Vorraum mit extra WC und Abstellraum kommt man in einen offenen und modernen Wohn/Kochbereich mit neuwertiger Küche. Ein großzügig dimensionierter Doppelflügelausgang führt auf die überdachte Loggia mit viel Platz zum Verweilen in der Abendsonne. Eine Markise kann zur Beschattung ausgefahren werden. Das Schlafzimmer ist ebenfalls groß und beherbergt einen modernen Kasten. Alle Außenfenster/Türen können mit Jalousien verdunkelt werden. Das Bad ist modern mit Waschtisch, bodenebener Dusche und Handtuch-Heizkörper ausgestattet, das extra WC mit Handwaschbecken im gleichen Stil gehalten. Ein Abstellraum mit Waschmaschinenanschluß und ein Kellerabteil stehen auch zur Verfügung. Vor dem Haus gibt es Parkplätze für die Bewohner!
| Standort: | 8600 Bruck an der Mur |
| Lärm: | geringe Lärmbelastung |
| Verkehr: | Öffentliche Verkehrsmittel: Bus und S-Bahn |
| Monatl. Kosten (brutto): | € 186,15 |
| Kurzinfo: | zentrale Lage mit schöner Abendsonne |
| Provision: | 3 % zzgl. 20% MwSt. |
| Baujahr: | 2020 |
| Grundstück: | TEILERSCHLOSSEN |
| Stockwerk/Etage: | 3 von 3 |
| Keller: | 4 m2 |
| Wohnfläche: | 58 m2 |
| Balkon/Terrasse: | 5 m2 |
| Zimmer: | 2 |
| Badezimmer: | 1 |
| Separates WC: | 1 |
| Loggia: | 1 |
| Stellplätze: | 1 |
| Mobilar: | teilmöbliert |
| Böden: | Parkett |
| Küche: | Einbauküche |
| Badezimmer: | Dusche |
| Heizung: | Elektroheizung |
| Fahrstuhl: | ja |
| Ausweis gültig bis: | 06.06.2027 | |
| Heizwärmebedarf: | 69.87 | ![]() |
| Gesamt-Energie-Effizient-Faktor: | 1.482 | ![]() |
