Zum Verkauf steht eine charmante Altbauwohnung aus dem 19. Jahrhundert, die den besonderen Charme dieser Epoche mit modernem Wohnkomfort vereint. Die Wohnung befindet sich im zweiten Stock eines historischen Gebäudes und bietet mit drei großzügigen (getrennt begehbaren) Zimmern viel Platz zum Wohlfühlen. Ein Zimmer mit Zugang zum Balkon.
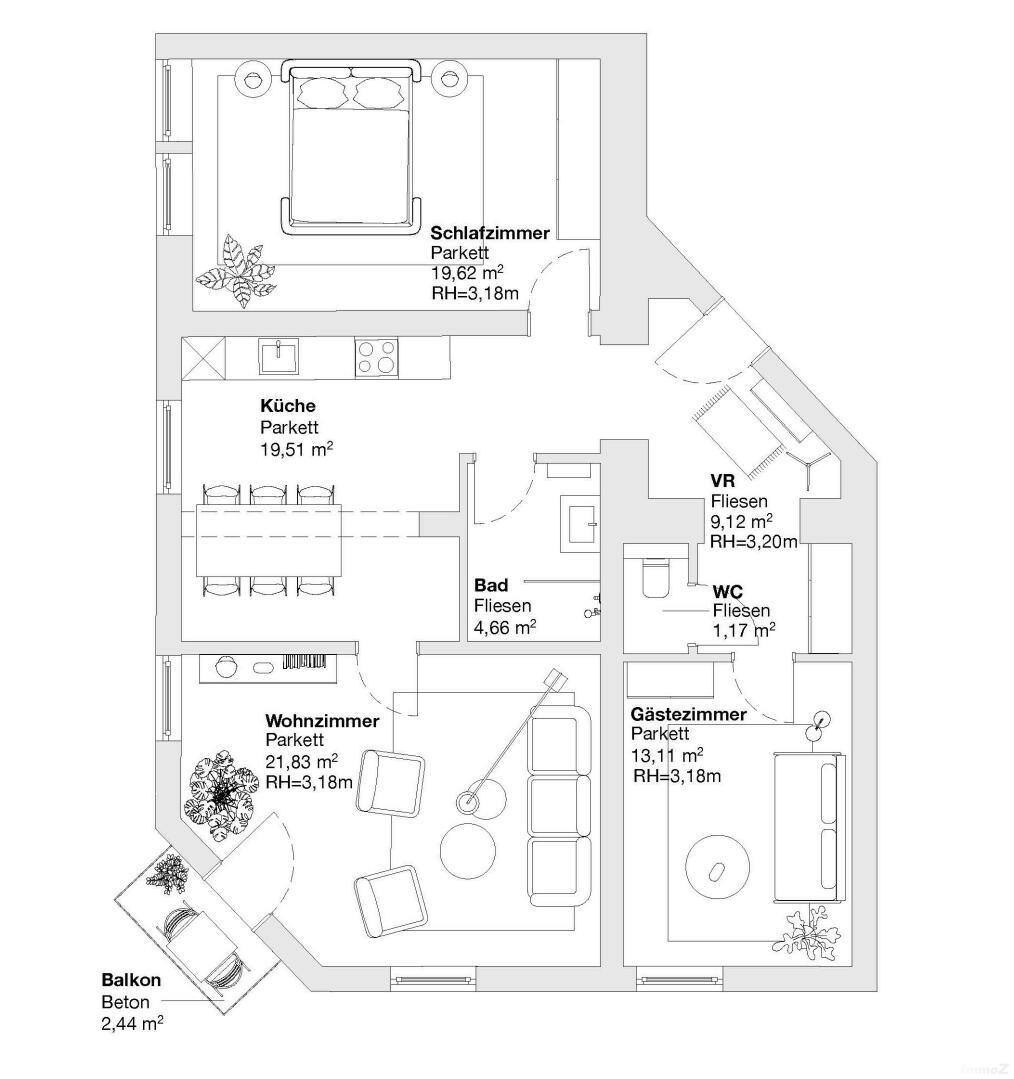
Eine großzügige Küche mit 19,51m² gibt genug Freiraum für einen gemütlichen Essplatz.
Das Badezimmer ist mit einer modernen Dusche ausgestattet, WC ist separat.
Die Raumhöhe von 3m30 und die schönen Wienerstock-Fenster verleihen der Wohnung ihren unverwechselbaren Charakter eines Altbaus.
Diese Wohnung ist perfekt für Liebhaber historischer Bauten, die ein stilvolles Zuhause mit Geschichte suchen. Ein echtes Juwel im Herzen des Altbaus!
Sanierungsdarlehen €137,17) monatlich( Balkone, Stiegenhaus Sanierung) Fiktiver Anteil dieser Wohnung 11.229,53€
| Standort: | 8020 Graz, Gries |
| Lage: | Sehr gute Infrastruktur! Öffis und Nahversorger sind fußläufig erreichbar. |
| Lärm: | mittlere Lärmbelastung |
| Verkehr: | Öffentliche Verkehrsmittel: Bus 2 Min. zu Fuß |
| Monatl. Kosten (brutto): | € 369,00 |
| Kurzinfo: | Saniert! Die Zimmer sind getrennt begehbar! WG tauglich! |
| Provision: | 3 % zzgl. 20% MwSt. |
| Baujahr: | 1900 |
| Grundstück: | VOLLERSCHLOSSEN |
| Stockwerk/Etage: | 2 von 3 |
| Wohnfläche: | 89 m2 |
| Balkon/Terrasse: | 2 m2 |
| Zimmer: | 3 |
| Balkone: | 1 |
| Mobilar: | teilmöbliert |
| Böden: | Parkett |
| Küche: | Einbauküche |
| Heizung: | Fernwärme |
| Heizwärmebedarf: | 85 | ![]() |
| Gesamt-Energie-Effizient-Faktor: | 1.61 | ![]() |
